Les études Avant-Projet Détaillées
Les études Avant-Projet Détaillées (APD) contiennent dans notre cas une étude de sol de type G2/PRO, une étude structure ossature bois pour la maison et une étude structure béton pour les fondations.
Etude de sol
L’étude de sol G2 Pro est mené par SAGE Ingénierie qui nous découvre un sol faiblement porteur en limite de voierie mais nous ne sommes pas surpris puisque tout le voisinage est déjà sur puits. Point positif tout de même, le faible poids d’une maison bois par rapport à une construction plus traditionnelle nous permet de limiter la taille des puits. A cette occasion, le plancher de l’étage passe en plancher bois pour limiter au maximum le poids sur les puits les plus dimensionnant, en limite de voirie (sondage T1).Etude structure Béton
L'étude structure Béton permet de dimensionner et de converger sur une solution de fondations en cohérence/collaboration avec le géotechnicien et de diverses contraintes chantiers. Les descentes de charges sont consolidées et permettent de valider et mettre à jour le rapport du géotechnicien. Un plan préliminaire de terrassement est également réalisée à cette occasion.
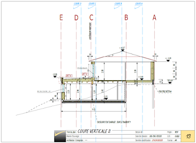
La solution pour notre projet est finalement une dalle portée sur la partie basse et un plancher bois sur la partie haute. Un mur banché de soutènement est réalisé pour le mur en contact avec la terre ainsi que 2 voiles latéraux de 1,05m pour les mêmes raisons.
Ci-joint une des coupes et la vue 3D du rapport d'étude réalisée par KUBIM Ingénierie.
Etude structure Ossature Bois
En parallèle, l'étude ossature Bois permet de détailler les choix constructifs un à un dans une approche globale cohérente:
Cette étude avant-projet détaillée nous permet également de consolider les descentes de charges de la partir MOB conformément au système constructif et matériaux (ossature, bardage, enduits, poutres, murs doublés, enduits terre, charpente, toitures,...) et de valider/mettre à jour également le rapport du géotechnicien.
Des vues 3D détaillées permettent de consolider la solution globale, de vérifier l'interface avec la 3D de l'étude structure Béton, de dimensionner les matériaux et prochainement d'effectuer parfaitement le suivi de chantier en phase d'exécution.
Les phases d'études avant projet détaillées (APD) sont clôturées et ont été très riches pour le projet. Nul doute que ces études nous permettent de fortement dé-risquer le projet. Si nous avions sous-estimer l'importance de celles-ci, nous sortons de cette phase avec le sentiment que ces études sont clairement indispensables pour une bonne réussite du projet.
Assistance à Maîtrise d'Ouvrage (AMO)
Enfin, "Last but not least", il faut également noté le support de notre Assistant à Maîtrise d'Ouvrage ACER09 qui nous supporte dans nos prises de décision, toujours pertinent et de bon conseils tant les cordes à son arc sont nombreuses: Thermicien, Formateur Pro-paille, lui-même Auto-constructeur MOB/paille et à énergie positive !
Un grand merci aux quatre sociétés LIBRE, KUBIM, SAGE Ingénierie, et ACER09 acteurs principaux de ces études APD, dont les compétences, la disponibilité et l'humanisme sont remarquables.





